Om geïnteresseerde (markt)partijen zo goed mogelijk te informeren over aankomende tenders in de gebiedsontwikkeling van Almere, hebben wij een tenderkalender opgesteld. Hierin vind je de meest actuele stand van zaken. Meer informatie over aankomende tenders volgt in de publicatie op TenderNed. Je kunt aan deze informatie geen rechten ontlenen.
Bedrijventerreinen staan niet in onze tenderkalender. Ga daarvoor naar onderneeminalmere.nl.

In Europakwartier Oost wordt een stedelijke en bijzonder onderscheidende wijk ontwikkeld, een levendige stadswijk in Almere. De wijk kenmerkt zich door een diverse mix van woningtypes zoals eengezinswoningen, boven- en benedenwoningen en appartementen. Allemaal ontworpen met karakteristieke elementen zoals kappen, erkers, trappen en loggia's. Centraal staat de Meent, een groene kruisvormige ruimte die de wijk verbindt met omliggende gebieden, waaronder de Europalaan en station Almere Poort. Met circa 1500 woningen in een mix van koop, huur en zelfbouw, biedt Europakwartier Oost een dynamische en aantrekkelijke stedelijke omgeving.
Hieronder een korte samenvatting van de inhoud van tender restant bouwveld C1:
Het totale programma voor deze tender betreft dus 62 woningen.
Verwachte start tender: januari 2026
Het gaat om de bouw van ongeveer 300 vrije sector huur- en koopappartementen, verdeeld over 3 gebouwen: S, U en V. Deze appartementen worden naar verwachting in Q1 van 2026 als tender op de markt gebracht. Met deze ontwikkeling dragen we bij aan de verdere groei van DUIN als aantrekkelijke woonomgeving.
Verwachte start tender: eerste kwartaal 2026
Op de afbeelding zie je de kaart van Duin, met in het noordwesten het deelgebied Kreekbos Noord.
Deelgebied Kreekbos Noord bestaat uit circa 100 projectmatige woningen en 45 zelfbouwkavels.
De projectmatige woningen worden met 1 tender op de markt gebracht.
Verwachte start tender: eerste kwartaal 2026
Begin 2025 is gestart met het bouwrijp maken van het eerste deelgebied van Europakwartier-Noord (EKN), ‘Tuinen van Poort-noord’. De wijk Europakwartier Noord wordt als een ‘Tuinstad in Harmonie’ vormgegeven, met een unieke en herkenbare identiteit als groenstedelijke tuinstad. Qua beeldkwaliteit wordt aansluiting gezocht bij het werk van Willem Marinus Dudok. In totaal is er ruimte voor circa 1010 woningen in Europakwartier Noord, grotendeels grondgebonden.
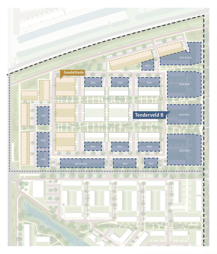
Binnen het deelgebied de ‘Tuinen van Poort-noord’ is ruimte voor 355 grondgebonden eengezinswoningen. Woningbouwcorporatie GoedeStede realiseert binnen dit deelgebied 103 sociale (grondgebonden) huurwoningen. Zo mogelijk wordt rond de jaarwisseling 2025/2026 gestart met de bouw van deze woningen.
Voor de overige woningen binnen het deelgebied de ‘Tuinen van Poort-noord’ wordt een aantal tenders uitgeschreven. De eerste tender omvat 166 grondgebonden rijwoningen (was 60), verdeeld over diverse bouwblokken. De kaart toont de ‘Tuinen van Poort Noord’ met daarop de betreffende bouwblokken in de blauw gekleurde vlakken. Ook zijn de woningen die GoedeStede ontwikkeld gemarkeerd in de beige gekleirde e vlakken.
Verwachte start tender: eerste kwartaal 2026
Op de kaart uit de Toekomstvisie Almere Buiten Centrum 2030 ligt het project Ontwikkeling Baltimoreplein binnen de zwarte cirkel. Het gebied ligt tussen het Detroitpad, Westeinde, Philadelphiapad en de New Yorkweg.
Baltimoreplein ligt op een strategische locatie in Almere Buiten Centrum dicht bij het station en het winkelcentrum. Het gaat om het laatste nog te ontwikkelen nieuwbouwproject in dit gebied. Het gebouw bevat ongeveer 150 appartementen met op de begane grond ruimte voor publieke voorzieningen (minimaal circa 2.000 m2 bvo).
Fase 3 ligt aan de oostkant van Nobelhorst en bestaat uit verschillende velden. In veld 17 ten noorden van de Nobellaan worden 2 buurtjes gerealiseerd, namelijk de Eilanden en het Dorpshart. In Q2 2025 komen de laatste kavels van veld 17 op de markt voor 50 huurwoningen in het middeldure segment.
Op de plankaart zie je de locatie van de woningen aangegeven met een rode lijn en daarin de hoeveelheid woningen.
In Europakwartier Oost wordt een stedelijke en bijzonder onderscheidende wijk ontwikkeld, een levendige stadswijk in Almere. De wijk kenmerkt zich door een diverse mix van woningtypes zoals eengezinswoningen, boven- en benedenwoningen, en appartementen, allemaal ontworpen met karakteristieke elementen zoals kappen, erkers, trappen en loggia's. Centraal staat de Meent, een groene kruisvormige ruimte die de wijk verbindt met omliggende gebieden, waaronder de Europalaan en station Almere Poort. Met circa 1500 woningen in een mix van koop, huur en zelfbouw, biedt Europakwartier Oost een dynamische en aantrekkelijke stedelijke omgeving.
Gecombineerde tender van bouwveld C2 en noordelijk deel C4.
C2: Circa 34 eengezinswoningen, deels 3 bouwlagen en 4 bouwlagen.
C4: Circa 41 woningen, waarvan 16 appartementen en 26 eengezinswoningen, deels 3 bouwlagen en 4 bouwlagen.
Tussen de 18 en maximaal 28 woningen met 4 bouwlagen.
Het totale programma voor deze tender betreft hiermee circa 75 woningen.